Exhibit 10.9
CONFIDENTIAL TREATMENT REQUESTED
BY DIAMEDICA THERAPEUTICS INC.
PURSUANT TO 17 C.F.R. SECTION 200.83
FIRST AMENDMENT TO LEASE
|
DATE: |
May 3, 2017 |
|
PARTIES: |
ONE TWO HOLDING LLC, A DELAWARE LIMITED LIABILITY COMPANY “Landlord” |
|
DIAMEDICA USA INC., A DELAWARE CORPORATION “Tenant” |
RECITALS:
A. Landlord and Tenant are parties to that certain lease dated September 18, 2015 and Supplemental Lease Agreement dated December 16, 2015 (collectively, the “Lease”) relating to approximately 1,559 rentable square feet of space (the “Existing Premises”) located at Two Carlson Parkway, Suite 165, Plymouth, MN 55447.
B. The parties have agreed to amend the Lease as set forth herein.
AGREEMENT:
In consideration of the following terms and conditions, the parties agree as follows:
1. Recitals. The foregoing recitals are true and are incorporated herein.
2. Extension of Lease Term. The Term of the Lease is hereby extended, pursuant to all of the terms and conditions of the Lease as amended, for an additional period of forty-two (42) months, ending on August 31, 2022 (the “First Extended Term”).
3. Relocation - Substitution of Premises.
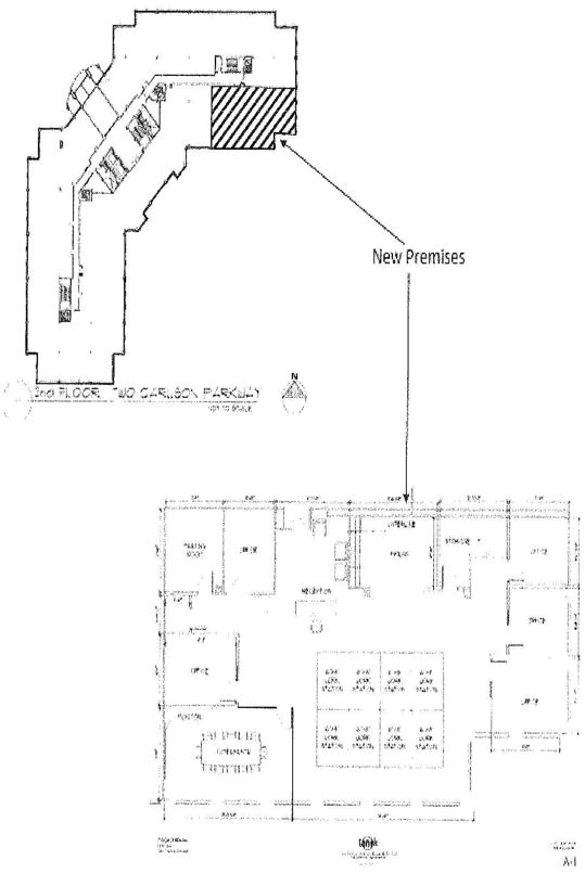
(a) On or before the Rent Commencement Date, Landlord shall relocate Tenant from its Existing Premises into new premises comprised of approximately 3,752 rentable square feet of space located in Two Carlson Parkway, Suite 260, Plymouth, MN 55447 New Premises”) as shown on Exhibit “A” attached hereto. Landlord shall perform the improvements to the New Premises in accordance with the terms of Paragraph 7 of this First Amendment to Lease. As of the Rent Commencement Date, Tenant shall vacate and surrender the Existing Premises pursuant to Paragraph 22 of the Lease and shall also accept for lease and shall occupy the New Premises. Tenant’s failure to relocate to the New Premises as specified herein shall constitute an Event of Default.
(b) The “Rent Commencement Date” of this First Amendment to Lease shall be the date of Substantial Completion of the New Premises Improvements (as hereinafter defined). Upon determination, Tenant shall, upon Landlord’s request, execute and deliver a written statement specifying the Rent Commencement Date.
1st Amend - Diamedica
CONFIDENTIAL TREATMENT REQUESTED
BY DIAMEDICA THERAPEUTICS INC.
PURSUANT TO 17 C.F.R. SECTION 200.83
(c) The term “Substantially Completed” or any grammatical variation thereof, when used in this Lease, shall mean that the New Premises Improvements have been completed with the exception of punch list items which can be fully completed subsequent to the Rent Commencement Date without material interference with Tenant’s activities. Tenant’s taking possession of the New Premises shall be conclusive evidence of Tenant’s receipt of the New Premises and of the New Premises Improvements being Substantially Completed and in good and satisfactory order, condition and repair. Tenant shall have thirty (30) days from the Rent Commencement Date to submit to Landlord, its punch list and Landlord shall, thereafter, use diligent efforts to perfonn such work as may be necessary to complete same in an expeditious manner.
(d) The term “Premises” shall be deemed to mean the Existing Premises prior to the Rent Commencement Date and shall be deemed to mean the New Premises subsequent to the Rent Commencement Date,
4. Street Address of Premises and Tenant’s Notice Address Change. As of the Rent Commencement Date, Sections 1.1 and 1.3 of the Lease are hereby deleted and replaced with the following address:
“Two Carlson Parkway, Suite 260, Plymouth, MN 55447”
5. Lease Year. As of the Rent Commencement Date, Section 1.12 of the Lease is hereby deleted in its entirety and replaced with the following:
“The twelve (12) full calendar month period commencing on the Rent Commencement Date and each anniversary thereof, unless the Rent Commencement Date does not fall on the first day of a month in which event the first Lease Year shall commence on the first day of the month immediately following the month in which the Rent Commencement Date occurs. Each subsequent Lease Year shall commence on the anniversary of the first Lease Year. The first Lease Year shall include any initial partial calendar month.”
6. Annual Base Rent. As of the Rent Commencement Date, Tenant’s Annual Base Rent for the Premises shall be as follows:
|
Months |
Annual Base Rent |
Monthly Installment |
|
Rent Commencement Date - November 30, 2017 |
$59,919.44 |
$4,990.29 |
|
12/1/2017 — 11/30/2018 |
$61,720.40 |
$5,143.37 |
|
12/1/2018 — 11/30/2019 |
$63,558.88 |
$5,296.57 |
|
12/1/2019 — 11/30/2020 |
$65,465.65 |
$5,455.47 |
|
12/1/2020 — 11/30/2021 |
$67,429.62 |
$5,619.13 |
|
12/1/2021 — 08/31/2022 |
$69,452.50 |
$5,787.71 |
1st Amend - Diamedica
CONFIDENTIAL TREATMENT REQUESTED
BY DIAMEDICA THERAPEUTICS INC.
PURSUANT TO 17 C.F.R. SECTION 200.83
7. Increase in Pro Rata Share of Operating Expenses and Taxes. As of the Effective Date and for purposes of calculating Tenant’s share of Operating Expenses and Real Estate Taxes, the Premises shall be deemed to be comprised of 3,752 rentable square feet of space.
8. Parking. As of the Rent Commencement Date, Landlord hereby leases to Tenant one (1) parking stall contained in the lower level parking garage within the Building (the “Parking Space”) and Tenant hereby accepts and leases the Parking Space in its “as is” condition from Landlord for the Term and extended term, unless sooner terminated pursuant to any provision set forth in this Lease. Commencing on the Rent Commencement Date, Tenant shall pay Landlord monthly, as Additional Rent, at the rate of One Hundred Fifty and 00/100 Dollars ($150.00) per month per Parking Space, plus any and all taxes (“Parking Rent”). Parking Rent shall be paid in equal monthly installments, as Additional Rent, The Parking Space and the Premises may be treated separately by Landlord under the terms of this Lease and Landlord shall not be required to provide any improvements in the event of a relocation of the Parking Space. Tenant shall use the Parking Space for parking passenger vehicles and for no other purpose. Parking shall be at the sole risk of Tenant and Tenant assumes all risk for damage which may occur to any vehicle. The Parking Space shall only be furnished such heat as legally required and shall not be furnished with air conditioning. Landlord shall maintain the parking garage as an Operating Expense. The Parking Space will not affect the determination of Tenant’s Pro Rata Share. Except as provided in this Paragraph 8, Tenant’s occupancy of the Parking Space shall be subject to all of the terms and conditions of this Lease as if the Parking Space was included in the definition of “Premises”. Failure to pay the Parking Rent shall constitute an Event of Default.
9. New Premises Improvements.
(a) Preliminary Plans. Landlord shall complete the installation of those certain tenant improvements (the “New Premises Improvements”) substantially as described in the set of preliminary plans as prepared by Tanek and dated February 8, 2017 (the “Preliminary Plans”).
(b) Final Plans. On or before thirty (30) days following the date of full execution of this First Amendment to Lease, Landlord shall submit to Tenant two (2) sets of Landlord’s proposed space and construction plans and specifications prepared by Landlord’s architect, for the Tenant Improvements. Within three (3) business days after receipt of Landlord’s plans and specifications Tenant shall either: (i) evidence its approval by endorsement on one (1) set of said plans and specifications (and return such signed or initialed set to Landlord); or (ii) indicate those revisions or corrections which Tenant requires and the reasons therefor; provided Landlord shall not be obligated to accept any revisions which Landlord shall reasonably determine: (A) do not conform to the standards of design, motif and decor reasonably established or adopted by Landlord for the Building; (B) would subject Landlord or the Premises to any additional cost, expense, liability, violation, fine, penalty, or forfeiture; would adversely affect the reputation, character, or nature of the Building; (C) would provide for or require any installation of work which is or might be unlawful, create an unsound or dangerous condition, adversely affect the structural soundness of the Premises or Building; (D) interfere with or abridge the use and enjoyment of any adjoining or other space in the Building, or (E) is of a special use or nature with little or no residual value (unless Tenant agrees to pay for such improvements and the removal thereof upon the expiration or earlier termination of this Lease). Landlord shall, within five (5) days thereafter, submit four (4) sets of proposed plans and specifications, as so revised or corrected, to Tenant for its approval in accordance with this paragraph, which plans will then be considered the final plans (the “Final Plans”). The Final Plans may subsequently be amended by Tenant provided that significant changes will require Landlord’s prior written approval, which approval shall be given or reasonably refused within five (5) business days after receipt of such amended plans and specifications. The parties will work cooperatively to complete the plan approval process expeditiously.
1st Amend - Diamedica
CONFIDENTIAL TREATMENT REQUESTED
BY DIAMEDICA THERAPEUTICS INC.
PURSUANT TO 17 C.F.R. SECTION 200.83
(c) Work Commencement. Construction of the Tenant Improvements shall not commence unless and until: Landlord has (a) approved the Final Plans and (b) obtained all applicable building permits.
(d) Allowance. Subject to the conditions set forth herein, Landlord agrees to contribute up to Ninety Thousand and 00/100 Dollars ($90,000.00) towards the Tenant Improvements (the “Improvement Allowance”). The reasonable costs of preparing the Preliminary Plans, Final Plans or construction drawings shall be considered a Tenant Improvement expense along with the Construction Management Fee and shall be paid from the Improvement Allowance. Landlord shall have the right to require that Tenant pay, in advance, the cost of any Tenant Improvements in excess of the Improvement Allowance and shall reserve the right to require that Tenant pre-pay any excess caused by change orders submitted by Tenant subsequent to the commencement of Tenant Improvements. In the event Tenant defaults in the performance of any of its monetary obligations under the Lease and fails to cure such default within the applicable cure period, then any portion of the Improvement Allowance paid to Tenant shall become immediately due and payable to Landlord as Additional Rent under the Lease.
(e) Extra Work.
(i) If Tenant desires to make changes to the Final Plans or desires that extra work, materials or equipment not included in the Final Plans be performed by Landlord and its general contractor (“Extra Work”), then Tenant must deliver to Landlord information necessary to properly describe the Extra Work requested. Landlord shall submit a proposal to Tenant for such Extra Work within thirty (30) days after receipt of such information. If Tenant decides to accept Landlord’s proposal and proceed with the Extra Work, Tenant shall be responsible to pay Landlord for same promptly following performance of such Extra Work in an amount equal to the actual cost of the work to Landlord from its general contractor, plus a 10% fee.
(ii) It shall be reasonable for Landlord to refuse to perform or approve any Extra Work for the reasons stated in Paragraph 7(b) above or if such Extra Work, in Landlord’s reasonable opinion would cause a delay to the overall and final completion of the Tenant’s Improvements.
(iii) Tenant shall not engage any contractor to perform any Extra Work, unless Landlord has given Tenant notice of its refusal to perform such work and/or has otherwise approved the contractor that Tenant wishes to engage to perform such Extra Work.
1st Amend - Diamedica
CONFIDENTIAL TREATMENT REQUESTED
BY DIAMEDICA THERAPEUTICS INC.
PURSUANT TO 17 C.F.R. SECTION 200.83
(iv) Notwithstanding the foregoing provisions, Landlord shall not authorize the general contractor to perform any Extra Work without prior written authorization from Tenant.
This prohibition pertains, without limitation, to the issuance of a change order by Landlord to general contractor.
10. Brokerage. Landlord and Tenant warrant that neither has incurred liability for any real estate brokerage fees or any other fees to any third party in connection with this Lease and in the event that any third party institutes legal action in an effort to recover brokerage fees, the breaching party shall defend such action and indemnify and hold the other party harmless from any related damages, liability or costs.
11. Counterparts/Electronic Signatures. This First Amendment to Lease may be executed in multiple counterparts, each of which shall be effective upon delivery and, thereafter, shall be deemed to be an original, and all of which shall be taken as one and the same instrument with the same effect as if each party had signed on the same signature page. This First Amendment to Lease may be transmitted by fax or by electronic mail in portable document format (“pdf”) and signatures appearing on faxed instruments and/or electronic mail instruments shall be treated as original signatures.
12. Interpretation of First Amendment to Lease. In the event of any conflict between the Lease and this First Amendment to Lease, the terms of this First Amendment to Lease shall control. Except as expressly amended, supplemented or modified by this First Amendment to Lease, the Lease shall continue in full force and effect. All capitalized terms contained in this First Amendment to Lease, unless specifically defined herein, shall have the meaning ascribed to them in the Lease.
13. Binding Effect. This First Amendment to Lease shall bind and inure to the benefit of the parties hereto and their respective heirs, successors and assigns.
[Signature page follows]
1st Amend - Diamedica
CONFIDENTIAL TREATMENT REQUESTED
BY DIAMEDICA THERAPEUTICS INC.
PURSUANT TO 17 C.F.R. SECTION 200.83
IN WITNESS WHEREOF, Landlord and Tenant have caused this First Amendment to Lease to be executed as of the day and year first above written.
| LANDLORD: | ||
| ONE TWO HOLDING LLC, | ||
| A DELAWARE LIMITED LIABILITY COMPANY | ||
| By: Carlson Real Estate Services, LLC | ||
| Its: Asset Manager | ||
| By: | /s/ Mark G. Herreid | |
| Name: Mark G. Herreid | ||
| Title: Chief Manager and CFO | ||
| TENANT: | ||
| DIAMEDICA USA INC., | ||
| A DELAWARE CORPORATION | ||
| By: | /s/ Rick Pauls | |
| Name: Rick Pauls | ||
| Title: President and CEO | ||
1st Amend - Diamedica
CONFIDENTIAL TREATMENT REQUESTED
BY DIAMEDICA THERAPEUTICS INC.
PURSUANT TO 17 C.F.R. SECTION 200.83
EXHIBIT “A”
NEW PREMISES

1st Amend - Diamedica